Eengezinswoning 5 slaapkamers173 m2 woonoppervlakte

Grândyk 1, 9151 AE, Holwert

€ 850.000,- k.k.

Vrijstaande woning met verhuurde units op toplocatie richting de boot naar Ameland!

Bent u op zoek naar een combinatie van woning en bedrijfsruimtes? Dan is deze vrijstaande woning met meerdere verhuurde units wellicht iets voor u! Gelegen aan de doorgaande weg richting de veerboot naar Ameland, biedt deze locatie zowel rust als uitstekende bereikbaarheid.

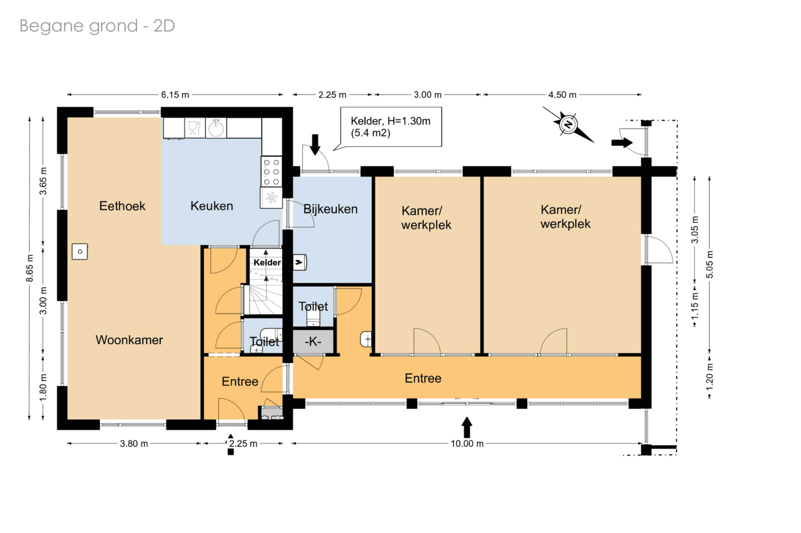
De woning zelf beschikt over een ruime tuin, waaronder een zonnige achtertuin op het zuidwesten met een vrijstaande houten berging. Aan de woning vast bevinden zich diverse units, elk met een eigen oppervlakte. Deze zijn momenteel verhuurd en bieden direct rendement voor de nieuwe eigenaar. Voor de exacte oppervlaktes en indeling van de units verwijzen wij u graag naar de plattegronden. Enkele units maken gebruik van een gezamenlijk toilet en zijn met een gezamenlijke hal te bereiken. Er is voldoende parkeergelegenheid op eigen terrein aanwezig voor huurders en bezoekers.

De woning zelf heeft op de begane grond twee entrees. Eén hal bevindt zich in het tussenstuk tussen de woning en de units en geeft toegang tot een toilet en twee ruimtes die kunnen dienen als slaapkamer of werkplek. De andere hal leidt naar een tweede toilet, een trap naar de kelder en de keuken. Vanuit de open keuken komt men in de woonkamer met eethoek, en via de keuken is ook de bijkeuken bereikbaar.

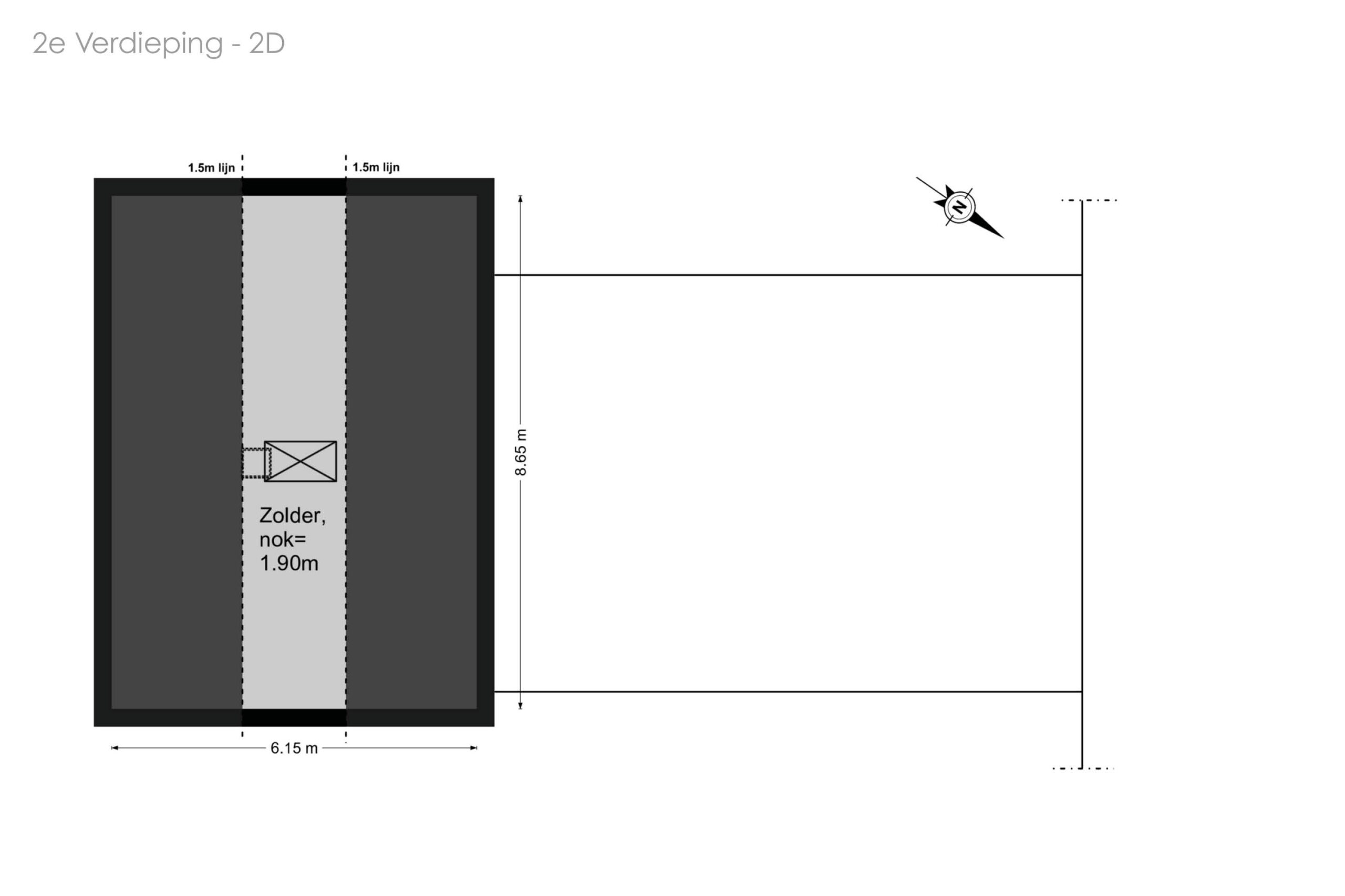
Op de eerste verdieping biedt de woning een overloop, drie slaapkamers waarvan één met inbouwkast, een apart washok en een badkamer voorzien van een wastafel en toilet.

De tuin rondom de woning bestaat uit een voortuin, zijtuin en een ruime achtertuin die ideaal is gelegen op het zuidwesten. De vrijstaande houten berging biedt praktische opbergruimte.

Deze woning is uitermate geschikt voor mensen die willen wonen met werkruimte aan huis of op zoek zijn naar een investeringsobject met direct rendement.

Bijzonderheden:
- Vrijstaande woning met verhuurde units
- Diverse gebruiksmogelijkheden: wonen, werken aan huis, investeren
- Gelegen aan de weg richting de veerboot naar Ameland
- Genoeg parkeergelegenheid voor de units
- 2 slaapkamers / werkplekken op de begane grond
- 3 slaapkamers op de verdieping
- Ruime achtertuin die is gelegen op het zuidwesten
- Vrijstaande houten berging

Locatie
Holwerd is een dorp in de gemeente Noardeast-Fryslân in de Nederlandse provincie Friesland en telt ongeveer 1650 inwoners. Holwerd biedt meerdere voorzieningen, waaronder de supermarkt, apotheekhoudende huisarts, basisschool en een rijk verenigingsleven. Vanuit het dorp is er een uitstekende busverbinding naar Dokkum en Leeuwarden. Leeuwarden bevindt zich op 26 km van Holwerd. Holwerd is gelegen aan het Friese Wad, waar de veerboot naar Ameland vertrekt. Het ligt 1,5 km van het natuurgebied Noord Friesland Buitendijks (Noard-Fryslân Bûtendyks) tussen Zwarte Haan en Holwerd, een van de grootste kweldergebieden van Europa, met een unieke flora en fauna (met name veel vogelsoorten). Noord Friesland behoort eveneens tot die gebieden in Nederland met de schoonste lucht.

Deze informatie is door ons met de nodige zorgvuldigheid samengesteld, veelal aan de hand van de door verkoper aan ons ter hand gestelde gegevens en tekeningen. Onzerzijds wordt echter geen enkele aansprakelijkheid aanvaard voor enige onvolledigheid, onjuistheid of anderszins, dan wel de gevolgen daarvan. Dit geldt voor onder meer de opgegeven maten, oppervlakten, isolatie en ouderdom van technische installaties.

Toelichtingsclausule NEN2580: De Meetinstructie is gebaseerd op de NEN2580. De Meetinstructie is bedoeld om een meer eenduidige manier van meten toe te passen voor het geven van een indicatie van de gebruiksoppervlakte. De Meetinstructie sluit verschillen in meetuitkomsten niet volledig uit, door bijvoorbeeld interpretatieverschillen, afrondingen of beperkingen bij het uitvoeren van de meting.

Overdracht
Status
Beschikbaar
Vraagprijs
€ 850.000,-
Aanvaarding
In overleg
Bouwvorm
Soort object
Woonhuis
Soort
Eengezinswoning
Soort dak
Zadeldak
Type woning
Vrijstaande woning
Bouwjaar
1979
Bouwvorm
Bestaande bouw
Ligging
Bedrijventerrein
Oppervlaktes en inhoud
Woonoppervlakte
173 m2
Perceel oppervlakte
8.955 m2
Externe bergruimte
0 m2
Inhoud
7.892 m3
Aantal kamers
7
Aantal slaapkamers
5
Tuin
Tuinen
Achtertuin, Voortuin, Zijtuin
Hoofdtuin
Achtertuin
Oppervlakte hoofdtuin
414 m2
Positie
Zuidwest
Achterom
Nee
Schuur / Berging
Schuur
Vrijstaand hout
Garage
Geen garage
Parkeer faciliteiten
Op eigen terrein
Onderhoud
Permanente bewoning
Ja
Onderhoud binnen
Redelijk
Onderhoud buiten
Redelijk
Huidig gebruik
Woonruimte
Huidige bestemming
Woonruimte
Energie
Warmwater
CV ketel
Verwarming
CV ketel