Bungalow 2 slaapkamers60 m2 woonoppervlakte

Grote Siege 43, 9133 CD, Eanjum

€ 235.000,- v.o.n.

Nieuwbouw vakantiewoning op eigen grond – direct aan het water!

Deze vakantiewoning is gelegen op eigen grond met recreatieve bestemming. De woning maakt deel uit van een geheel van recreatiewoningen met een jachthaven en een restaurant. De woning is gebouwd in 2024 volledig geïsoleerd en gasloos – dus klaar voor de toekomst. Bovendien heb je de mogelijkheid om een boot aan de kavel aan te leggen. Vanaf de woning vaar je zo met een sloep of kano het Lauwersmeer op en kun je eventueel door de sluizen naar het Wad.

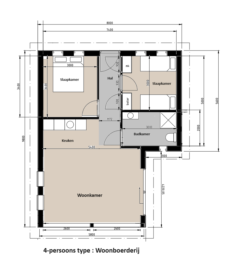
Indeling
Via de entree betreedt u de hal met meterkast en een technische ruimte. De watergerichte woonkamer beschikt over een schuifpui naar het terras, waardoor u optimaal geniet van het buitenleven. De open keuken biedt alle ruimte voor een eigen invulling en kan volledig naar eigen smaak worden samengesteld (keuken en badkamer zijn niet bij de prijs inbegrepen). De woning beschikt verder over twee slaapkamers van circa 10,2 m² en 8 m² en een badkamer met ruimte voor een toilet, douche en wastafel. Dankzij de vloerverwarming en hoogwaardige isolatie is het hier het hele jaar door comfortabel verblijven.

Kenmerken:
- Bouwjaar 2024
- Volledig geïsoleerd
- Vloerverwarming
- Gasloos wonen
- Gelegen op een perceel eigen grond van ca. 330 m²
- Eigen ligplaats voor een (motor)boot
- Parkkosten bedragen jaarlijks ca. €1300,- incl. BTW
- Verbonden aan het Lauwersmeer

Hoogwaardige bouw en afwerking
De woning is zorgvuldig vervaardigd en heeft een luxe uitstraling. Het bouwmateriaal, de isolatie en het comfort zijn van hoogwaardig niveau. De belangrijkste kenmerken op een rij:
- Betonnen fundering
- Zwart Lunawood buitenbekleding
- Zwarte kunststof kozijnen met HR-++ glas
- Vloer-, muur- en dakisolatie
- Afgewerkte vloeren en wanden (is bij de koopsom
inbegrepen en nog naar smaak in te richten)
- Mechanische afzuiging
- Exclusief keuken en badkamer
- Optioneel: Zonnepanelenpakket
- Optioneel: Tuinaanleg

Koopprijs woning met eigen grond: €235.000,- V.O.N. & excl. btw.

Locatie
De locatie is ideaal voor natuurliefhebbers, wandelaars, fietsers, watersporters of surfers. Dokkum, Leeuwarden en Groningen zijn zeer goed te bereiken. Het park is op slechts 10 minuten fietsen naar Eanjum waar een supermarkt, slager, snackbar, huisarts en meerdere faciliteiten aanwezig zijn. In de nabije omgeving vindt u o.a. het Nationaal Park Lauwersmeer, een jachthaven, paviljoen “De Gouden Stek” en andere horeca aangelegenheden. Bovendien is het park gelegen op loopafstand van Landal Esonstad met diverse voorzieningen waaronder, een zwembad, speeltuinen en een 18-holes pitch & putt golfbaan.

Het park is gelegen in de buurtschap Oostmahorn. De buurt Oostmahorn ligt binnen Anjum in de gemeente Noardeast-Fryslân. Oostmahorn is een klein dorpje aan de westelijke oever van het Lauwersmeer en telt ongeveer 80 inwoners. Het bevindt zich tevens aan de rand van het Friese deel van Nationaal Park Lauwersmeer. Daarnaast is het mogelijk een boot te huren om een tocht te maken over het Lauwersmeer. Ook is het een perfect startpunt voor fietstochten. Pittoreske dorpjes als Moddergat en Peazens aan de Noordzee en Oostmahorn aan het Lauwersmeer vind je op steenworp afstand. Bovendien zijn de Waddeneilanden vanuit Eanjum goed te bereiken.

Verhuren
Verhuren is toegestaan en kan individueel of via een verhuurorganisatie, waarmee wij jou eventueel in contact kunnen brengen. Verhuren is echter niet verplicht. Het park, waar deze nieuwe woningen deel van uitmaken, omvat al eerder gebouwde recreatiewoningen en beschikt onder andere over een jachthaven, scheepswerf en restaurant.

Btw teruggave
De aankoop van een nieuwe vakantiewoning in Nederland is belast met 21% omzetbelasting (btw). Onder bepaalde voorwaarden kan deze teruggevorderd worden van de belastingdienst. Het terugvorderen is afhankelijk van hoe de woning gebruikt wordt. De recreatiewoning mag je verhuren, dit is echter niet verplicht. De verhuur mag je zelf regelen. Je kunt er ook voor kiezen om hier een partij voor in te schakelen.       

Overdracht
Status
Beschikbaar
Vraagprijs
€ 235.000,-
Aanvaarding
In overleg
Bouwvorm
Soort object
Woonhuis
Soort
Bungalow
Soort dak
Zadeldak
Type woning
Vrijstaande woning
Bouwjaar
2024
Bouwvorm
Bestaande bouw
Ligging
Aan rustige weg, Aan vaarwater
Oppervlaktes en inhoud
Woonoppervlakte
60 m2
Perceel oppervlakte
330 m2
Externe bergruimte
0 m2
Inhoud
210 m3
Aantal kamers
4
Aantal slaapkamers
2
Tuin
Tuinen
Tuin rondom
Hoofdtuin
Tuin rondom
Achterom
Ja
Kwaliteit
Aan te leggen
Schuur / Berging
Garage
Geen garage
Parkeer faciliteiten
Op eigen terrein
Voorzieningen
Voorzieningen
Mechanische ventilatie
Onderhoud
Permanente bewoning
Nee
Onderhoud binnen
Uitstekend
Onderhoud buiten
Uitstekend
Huidig gebruik
Recreatie
Huidige bestemming
Recreatie
Energie
Warmwater
Elektrische boiler eigendom
Verwarming
Vloerverwarming geheel