Eengezinswoning 3 slaapkamers181 m2 woonoppervlakte

It Skûtsje 22, 9123 KL, Mitselwier

€ 649.000,- k.k.

Aan een rustige straat zonder doorgaand autoverkeer, aan de buitenrand van Mitselwier, staat deze levensloopbestendige woning in Scandinavische stijl op een perceel van 656 m². Het betreft een comfortabel en opvallend ruim woonhuis met energielabel A en een totale woonoppervlakte van 174 m². Hier woont u in alle privacy, met vrij uitzicht over water en landerijen.

De zonnige tuin is op het zuiden gericht en biedt meerdere fijne zitplekken om van het weidse landschap te genieten. Een bijzonder element is de eigen steiger aan het water, waar het uitzicht optimaal beleefd kan worden. Dankzij de ligging en de opzet van het perceel ervaart u hier rust en ruimte.

De woning is levensloopbestendig ingericht, met een slaapkamer en aangrenzende badkamer op de begane grond. De woonkamer is royaal opgezet en kenmerkt zich door een diepe erker, twee comfortabele zithoeken en een centraal geplaatste open haard die zorgt voor extra sfeer. Grote raampartijen en een schuifpui versterken het contact met de tuin en creëren een prettige overgang tussen binnen en buiten.

De ruime leefkeuken is uitgevoerd met hoogwaardige materialen en apparatuur. Zo beschikt deze over een Coriander werkblad, inbouwapparatuur van Gaggenau en een Quooker. Vanuit de keuken is er eveneens toegang tot de tuin. Praktisch is de inpandige, verwarmde garage met elektrische deur en doorgang naar de zolder. De gehele begane grond, met uitzondering van de garage, is voorzien van vloerverwarming.

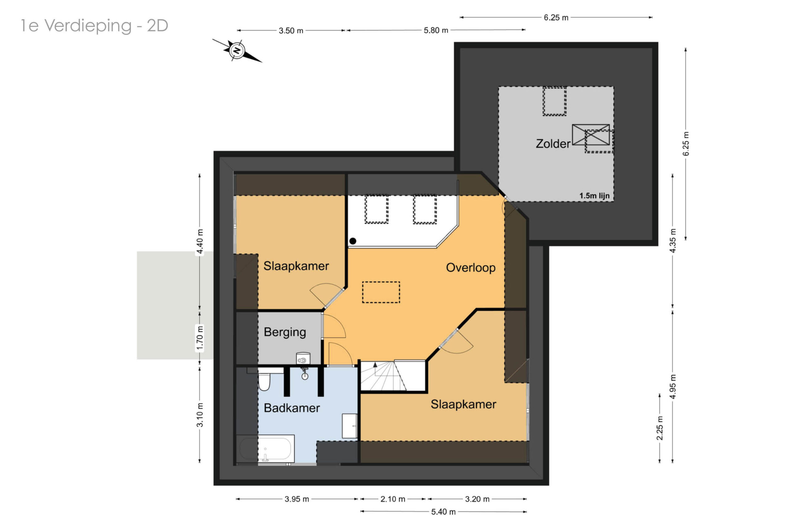
Op de eerste verdieping bevinden zich twee volwaardige slaapkamers en een ruime gezinsbadkamer met wastafel, douche, toilet en ligbad. De royale overloop met vide biedt mogelijkheden voor het realiseren van een werkplek of speelruimte. Daarnaast is er een separate berging met cv-opstelling en toegang tot een tweede bergzolder. Boven de garage bevindt zich een extra zolderruimte met daglichttoetreding, bereikbaar via zowel de overloop als de garage.

Indeling

Begane grond: entree/hal, toilet, bijkeuken met doorgang naar de garage, slaapkamer met aansluitende badkamer (douche, dubbele wastafel en toilet), royale woonkamer met erker, open haard en schuifpui naar de tuin, moderne woonkeuken met veel bergruimte en tuindeur.

Eerste verdieping: ruime overloop met vide, twee slaapkamers, berging met cv-installatie, badkamer voorzien van wastafel, douche, toilet en ligbad.

Zolder: via vlizotrap bereikbare bergzolder.

Sinds de bouw in 2002 is de woning zowel binnen als buiten zorgvuldig en intensief onderhouden. Ook de tuin is met aandacht aangelegd en verkeert in uitstekende staat.

Mitselwier (Metslawier) is een sfeervol dorp in het noordoosten van Friesland, op circa 10 kilometer van Nationaal Park Lauwersmeer en 7 kilometer van de historische stad Dokkum. De Waddeneilanden Ameland en Schiermonnikoog zijn eveneens goed bereikbaar. Het dorp beschikt over diverse voorzieningen, waaronder een basisschool, peuterschool, huisartsenpraktijk en dorpscafé. Daarnaast is er een actief verenigingsleven met onder meer een voetbal- en tennisvereniging. In de karakteristieke kerk in de oude dorpskern worden regelmatig exposities en culturele activiteiten georganiseerd. Mitselwier heeft een busverbinding naar Dokkum en op vijf minuten loopafstand bevindt zich een halte van de snelbus naar Leeuwarden.

Bijzonderheden

174 m² woonoppervlakte (NEN-gemeten, certificaat aanwezig);

Levensloopbestendig;

Sfeervolle woonkamer met houtkachel en twee zitgedeeltes;

Elektrisch bedienbare verticale zonneschermen bij de woonkamer;

Luxe woonkeuken met hoogwaardige inbouwapparatuur;

Vloerverwarming over de hele begane grond m.u.v. de garage;

3 slaapkamers;

2 badkamers;

3 toiletten (waarvan 1 separaat);

Bijkeuken met wastafel en koelkast en kast voor wasmachine en droger.

Garage met CV verwarming

Twee zolderruimtes;

Extra berging met cv-opstelling;

Fraai aangelegde tuin rondom met meerdere terrassen;

Irrigatiesysteem;

Eigen steiger;

Parkeergelegenheid voor drie auto’s op eigen terrein;

Energielabel A (daarna nog 8 zonnepanelen in 2024 geplaatst)

Locatie:
Het dorp beschikt over een basisschool, horecagelegenheid en tennisbanen. Op korte afstand de tandarts (Dokkum) en de huisarts (Niawier). Mitselwier ligt op circa 6 km afstand van de historische stad Dokkum. Op circa 10 autominuten vind je de veerboot van Lauwersoog naar Schiermonnikoog en het Nationale Park Lauwersmeer, een prachtig natuurgebied met bijzondere bloemen, enorme aantallen vogels en geweldige vergezichten. Door de Centrale As (N356 Dokkum-Nijega) zijn zowel Dokkum, Leeuwarden, Drachten en de uitvalswegen naar de Randstad uitstekend bereikbaar.

Deze informatie is door ons met de nodige zorgvuldigheid samengesteld, veelal aan de hand van de door verkoper aan ons ter hand gestelde gegevens en tekeningen. Onzerzijds wordt echter geen enkele aansprakelijkheid aanvaard voor enige onvolledigheid, onjuistheid of anderszins, dan wel de gevolgen daarvan. Dit geldt voor onder meer de opgegeven maten, oppervlakten, isolatie en ouderdom van technische installaties.

Toelichtingsclausule NEN2580: De Meetinstructie is gebaseerd op de NEN2580. De Meetinstructie is bedoeld om een meer eenduidige manier van meten toe te passen voor het geven van een indicatie van de gebruiksoppervlakte. De Meetinstructie sluit verschillen in meetuitkomsten niet volledig uit, door bijvoorbeeld interpretatieverschillen, afrondingen of beperkingen bij het uitvoeren van de meting.

Overdracht
Status
Beschikbaar
Vraagprijs
€ 649.000,-
Aanvaarding
In overleg
Bouwvorm
Soort object
Woonhuis
Soort
Eengezinswoning
Soort dak
Samengesteld dak
Type woning
Vrijstaande woning
Bouwjaar
2002
Bouwvorm
Bestaande bouw
Oppervlaktes en inhoud
Woonoppervlakte
181 m2
Perceel oppervlakte
656 m2
Externe bergruimte
8 m2
Inhoud
776 m3
Aantal kamers
8
Aantal slaapkamers
3
Tuin
Tuinen
Tuin rondom
Hoofdtuin
Tuin rondom
Achterom
Ja
Schuur / Berging
Schuur
Vrijstaand hout
Garage
Inpandig
Parkeer faciliteiten
Op eigen terrein
Voorzieningen
Voorzieningen
Mechanische ventilatie, TV kabel, Zonnepanelen, Natuurlijke ventilatie
Onderhoud
Permanente bewoning
Ja
Onderhoud binnen
Goed
Onderhoud buiten
Goed
Huidig gebruik
Woonruimte
Huidige bestemming
Woonruimte
Energie
Energieklasse
A
Energie einddatum
28 november 2033
Warmwater
CV ketel
Verwarming
CV ketel, Vloerverwarming gedeeltelijk, Warmte terugwininstallatie, Houtkachel
Bouwjaar
2017