Eengezinswoning 4 slaapkamers142 m2 woonoppervlakte

K. van Dijkstrjitte 22, 9103 NS, Dokkum

Verkocht o.v.
€ 599.000,- k.k.

Vrijstaande woning met unieke indeling, achtertuin gelegen aan het water.

Op een prachtige, groene locatie direct aan het water staat deze goed onderhouden vrijstaande woning met een unieke indeling: slapen beneden en wonen boven. Het huis is volledig geïsoleerd, voorzien van een all-electric warmtepomp, zonnepanelen en een sedumdak – duurzaam, comfortabel en klaar voor de toekomst.

Op de eerste verdieping vind je de leefruimte, via een gemakkelijke trap bereik je de voordeur. Hier een hal met toilet, een royale woonkeuken met toegang tot het dakterras en de woonkamer. De woonkamer is voorzien van openslaande deuren naar een zonnig balkon op het zuiden. Tevens vanuit de keuken toegang naar een royaal dakterras (zuid-westzijde) met een trap naar de tuin. De achtertuin is gelegen op het zuiden en beschikt over een terras direct aan het water.

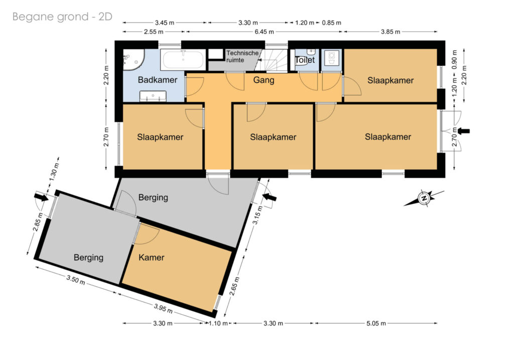
Beneden zijn de slaapkamers. Maar liefst vier slaapkamers en de badkamer met ligbad, douche en dubbele wastafel. Daarnaast is de hal voorzien van een tweede separaat toilet en een praktische inbouwkast met aansluitingen voor wasmachine en-droger en de trapopgang naar de eerste verdieping. Eén van de slaapkamers beschikt over openslaande deuren naar de achtertuin/terras.

De garage is opgedeeld in 2 vertrekken, deels een berging, fietsen etc. Het achterdeel is een geïsoleerde en verwarmde ruimte. Doet nu dienst als kantoor/hobbyruimte. Dat zou eventueel ook een extra slaapkamer kunnen worden. Tevens is er extra bergruimte gecreëerd door de voormalige open ruimte tussen garage en woonhuis af te sluiten met een berging, dit is tevens extra oppervlakte dakterras op de verdieping. Boven de woonkeuken bevindt zich een ruime bergzolder die via een vlizotrap in de hal te bereiken is.

Bijzonderheden:
- Perceeloppervlakte 505 m²
- Achtertuin gelegen op het zuiden
- Beneden slapen, boven wonen
- Goed onderhouden
- 4 slaapkamers
- Kantoor/hobbyruimte in de garage en overdekte berging
- Terras direct aan het water
- Ruime dakterras van 22 m² op de eerste verdieping
- Ruime bergzolder boven de woonkeuken
- Volledig geïsoleerd
- All electric warmtepomp
- Zonnepanelen
- Sedum dak

Locatie
Dokkum is één van de Friese Elfsteden en heeft een regionale verzorgingsfunctie voor heel Noordoost-Friesland. De sfeervolle vestingstad, met haar prachtige historische binnenstad, biedt een uitstekend voorzieningenniveau met o.a. een ziekenhuis, diverse scholen (zowel basis, voortgezet als speciaal onderwijs), een tropisch zwembad en tal van sportfaciliteiten en verenigingen. Dokkum is gelegen in de gemeente Noardeast-Fryslân en telt circa 14.000 inwoners. Met dit levendige inwonersaantal beschikt de stad over een breed scala aan voorzieningen, terwijl het historische karakter behouden is gebleven. De ligging is bovendien ideaal: vlakbij het schitterende Nationaal Park Lauwersmeer en de Friese Wadden. Op slechts enkele kilometers afstand bevinden zich Lauwersoog en Holwerd, de opstapplaatsen naar de Waddeneilanden Schiermonnikoog en Ameland. Sinds 2016 is Dokkum dankzij de Centrale As uitstekend aangesloten op het vernieuwde wegennetwerk richting Leeuwarden, Drachten, Heerenveen en Groningen.

Deze informatie is door ons met de nodige zorgvuldigheid samengesteld, veelal aan de hand van de door verkoper aan ons ter hand gestelde gegevens en tekeningen. Onzerzijds wordt echter geen enkele aansprakelijkheid aanvaard voor enige onvolledigheid, onjuistheid of anderszins, dan wel de gevolgen daarvan. Dit geldt voor onder meer de opgegeven maten, oppervlakten, isolatie en ouderdom van technische installaties.

Toelichtingsclausule NEN2580: De Meetinstructie is gebaseerd op de NEN2580. De Meetinstructie is bedoeld om een meer eenduidige manier van meten toe te passen voor het geven van een indicatie van de gebruiksoppervlakte. De Meetinstructie sluit verschillen in meetuitkomsten niet volledig uit, door bijvoorbeeld interpretatieverschillen, afrondingen of beperkingen bij het uitvoeren van de meting.

Overdracht
Status
Verkocht o.v.
Vraagprijs
€ 599.000,-
Aanvaarding
In overleg
Bouwvorm
Soort object
Woonhuis
Soort
Eengezinswoning
Soort dak
Zadeldak
Type woning
Vrijstaande woning
Bouwjaar
2007
Bouwvorm
Bestaande bouw
Ligging
Aan water, Aan rustige weg, In woonwijk
Oppervlaktes en inhoud
Woonoppervlakte
142 m2
Perceel oppervlakte
505 m2
Externe bergruimte
0 m2
Inhoud
620 m3
Aantal kamers
7
Aantal slaapkamers
4
Tuin
Tuinen
Achtertuin
Hoofdtuin
Achtertuin
Oppervlakte hoofdtuin
126 m2
Positie
Zuid
Achterom
Nee
Schuur / Berging
Schuur
Aangebouwd steen
Garage
Geen garage
Parkeer faciliteiten
Op eigen terrein
Voorzieningen
Voorzieningen
Mechanische ventilatie, TV kabel, Zonnepanelen, Natuurlijke ventilatie
Onderhoud
Permanente bewoning
Ja
Onderhoud binnen
Goed
Onderhoud buiten
Goed
Huidig gebruik
Woonruimte
Huidige bestemming
Woonruimte
Energie
Energieklasse
A+++
Energie einddatum
14 augustus 2035
Verwarming
Warmtepomp