Eengezinswoning 4 slaapkamers127 m2 woonoppervlakte

Nijbuorren 34, 9137 SJ, Easternijtsjerk

Verkocht o.v.
€ 325.000,- k.k.

Instapklare twee-onder-een-kapwoning met garage, vier slaapkamers en een verzorgde, beschutte achtertuin. De woning is gelegen in het dorp Easternijtsjerk en beschikt over een totale gebruiksoppervlakte van 146 m².

In 2022 is vrijwel de gehele begane grond voorzien van een nieuwe pvc-vloer en is onder andere vloerverwarming aangelegd in de hal, het toilet, de keuken en de bijkeuken. Daarnaast zijn in vrijwel de gehele woning nieuwe kunststof kozijnen met HR+++ glas geplaatst, waaronder een schuifpui naar de achtertuin. Tevens is in 2022 een nieuwe keuken geplaatst, zijn de gevels grotendeels opnieuw gereinigd, gevoegd en is de woning voorzien van spouwmuurisolatie en bodemisolatie.

Indeling
Via de entree/hal op de begane grond heb je toegang tot de moderne toiletruimte en de woonkamer. De lichte woonkamer staat in directe verbinding met de achtertuin middels een schuifpui. Aangrenzend bevindt zich de keuken, welke is voorzien van diverse inbouwapparatuur, waaronder een inductiekookplaat, afzuigkap, vaatwasser en combioven. Vanuit de keuken bereik je de bijkeuken met witgoedaansluitingen en extra bergruimte. Deze leidt door naar de aangebouwde stenen garage/berging, uitgerust met water- en stroomvoorzieningen en een vliering.

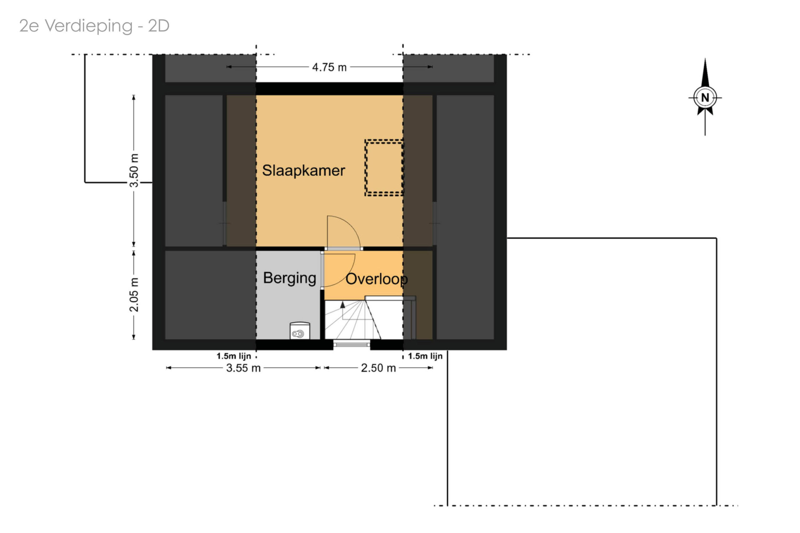
Op de eerste verdieping bevinden zich drie slaapkamers, waarvan één is voorzien van een inloopkast. Daarnaast beschikt de woning over een royale en verzorgde badkamer van circa 10 m². Dankzij de dakkapel heeft de badkamer extra ruimte en licht. De badkamer is compleet uitgevoerd met een toilet, dubbele wastafel, ligbad en een inloopdouche. Via een vaste trap is de tweede verdieping bereikbaar. Hier bevinden zich een overloop, een berging met de cv-ketel (Intergas, 2022) en een vierde slaapkamer.

Bijzonderheden:
- Traditionele bouw
- 4 slaapkamers
- Energielabel B
- Bodem-, muur- en dakisolatie aanwezig
- De gevel van de woning is in 2022 gereinigd, v.v. nieuw voegwerk en spouwmuurisolatie
- Vrijwel geheel v.v. kunststof kozijnen met triple glas, horren en screens
- Cv-ketel, Intergas 2022
- Bouwjaar 1982

Locatie
Het dorp Oosternijkerk beschikt over een sterk sociaal verenigingsleven, diverse sportverenigingen, een supermarkt, basisschool, een huisarts enz. Dokkum ligt op circa 10 minuten afstand en heeft een prachtige historische binnenstad met een groot aantal voorzieningen zoals winkels, horeca en een ziekenhuis. Het Nationaal Park Lauwersmeer, de Waddenzee en de veerboten naar Ameland en Schiermonnikoog bevinden zich op korte afstand van Oosternijkerk.

Deze informatie is door ons met de nodige zorgvuldigheid samengesteld, veelal aan de hand van de door verkoper aan ons ter hand gestelde gegevens en tekeningen. Onzerzijds wordt echter geen enkele aansprakelijkheid aanvaard voor enige onvolledigheid, onjuistheid of anderszins, dan wel de gevolgen daarvan. Dit geldt voor onder meer de opgegeven maten, oppervlakten, isolatie en ouderdom van technische installaties.

Toelichtingsclausule NEN2580: De Meetinstructie is gebaseerd op de NEN2580. De Meetinstructie is bedoeld om een meer eenduidige manier van meten toe te passen voor het geven van een indicatie van de gebruiksoppervlakte. De Meetinstructie sluit verschillen in meetuitkomsten niet volledig uit, door bijvoorbeeld interpretatieverschillen, afrondingen of beperkingen bij het uitvoeren van de meting.

Overdracht
Status
Verkocht o.v.
Vraagprijs
€ 325.000,-
Aanvaarding
In overleg
Bouwvorm
Soort object
Woonhuis
Soort
Eengezinswoning
Soort dak
Zadeldak
Type woning
Geschakelde twee onder één kapwoning
Bouwjaar
1982
Bouwvorm
Bestaande bouw
Ligging
Aan rustige weg
Oppervlaktes en inhoud
Woonoppervlakte
127 m2
Perceel oppervlakte
229 m2
Externe bergruimte
0 m2
Inhoud
508 m3
Aantal kamers
6
Aantal slaapkamers
4
Tuin
Tuinen
Achtertuin, Voortuin
Achterom
Nee
Kwaliteit
Verzorgd
Schuur / Berging
Schuur
Inpandig
Garage
Aangebouwd steen
Parkeer faciliteiten
Openbaar parkeren, Op eigen terrein
Voorzieningen
Voorzieningen
TV kabel, Schuifpui, Glasvezel kabel, Natuurlijke ventilatie
Onderhoud
Permanente bewoning
Ja
Onderhoud binnen
Redelijk tot goed
Onderhoud buiten
Redelijk tot goed
Huidig gebruik
Woonruimte
Huidige bestemming
Woonruimte
Energie
Energieklasse
B
Energie einddatum
23 december 2035
Warmwater
CV ketel
Verwarming
CV ketel
Bouwjaar
2022