Eengezinswoning 4 slaapkamers119 m2 woonoppervlakte

S.E. Wendelaar Bongastrjitte 4, 9103 PP, Dokkum

€ 550.000,- k.k.

Ruime gezinswoning met slaapkamer en badkamer op de begane grond, zonnige tuin op het zuiden en garage.

In de geliefde en kindvriendelijke woonwijk De Kooilanden staat deze verrassend ruime en goed onderhouden woning met uitbouw (2005), garage en maar liefst vier slaapkamers. Eén slaapkamer bevindt zich op de begane grond. Een ideale gezinswoning, met tevens de mogelijkheid tot gelijkvloers wonen, een werkkamer of een speelkamer.

Indeling
Begane grond:
Entree met trapopgang naar de eerste verdieping, woonkamer met eethoek en uitbouw. De lichte woonkamer beschikt over een schuifpui naar de fraai aangelegde achtertuin op het zuiden. De woning is in 2005 uitgebouwd, waardoor op de begane grond een ruime slaapkamer met openslaande deuren naar de tuin en een badkamer zijn gerealiseerd. Ideaal voor levensloopbestendig wonen of werken aan huis. De lichte keuken is voorzien van deels vernieuwde apparatuur (2025), waaronder een koelkast, inductiekookplaat, vaatwasser en magnetron. Daarnaast is er een praktische bijkeuken met witgoedaansluitingen en een cv-ketel.

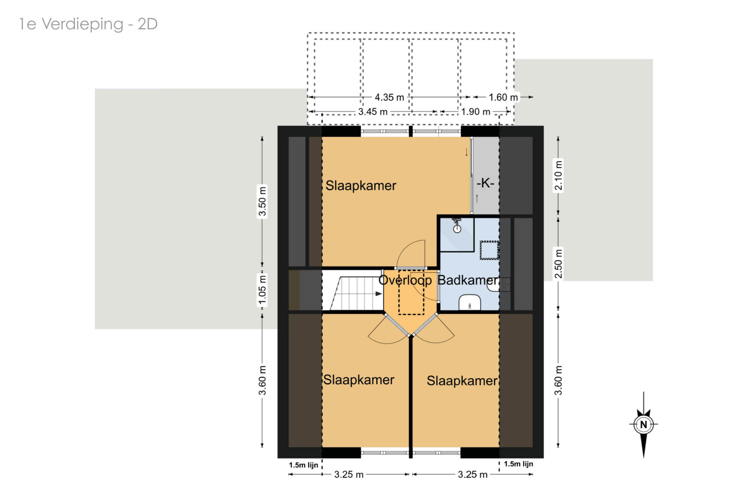
Eerste verdieping:
Overloop met toegang tot drie slaapkamers en een tweede badkamer met douche, toilet en badkamermeubel.

Zolder:
Ruime bergzolder, bereikbaar via een vlizotrap.

Tuin:
Hier geniet u volop van privacy, een vijver en een aluminium overkapping met elektrisch screen. De woning beschikt over een eigen achterom via een eigen pad.

Bijzonderheden:
- Uitbouw (2005)
- Energielabel B
- 4 slaapkamers (waarvan 1 op de begane grond)
- 2 badkamers
- 3 toiletten
- Garage met elektrische deur
- 10 zonnepanelen
- Tuin op het zuiden met vijver, overkapping en tuinhuis
- Keurig onderhouden

Locatie:
Dokkum is één van de Friese Elfsteden en heeft een regionale verzorgingsfunctie voor heel Noordoost- Friesland. De vestingstad Dokkum met haar prachtige historische binnenstad, beschikt over een goed voorzieningenniveau met o.a. een ziekenhuis, diverse scholen (zowel basis als voortgezet en speciaal onderwijs), een tropisch zwembad en diverse sport faciliteiten en verenigingen. Dokkum is gelegen in de gemeente Noardeast Fryslan en heeft ca. 14.000 inwoners. Dokkum ligt vlakbij het schitterende Nationaal Park Lauwersmeer en de Friese Wadden en is enkele kilometers verwijdert van Lauwersoog en Holwerd, de opstapplaatsen naar Schiermonnikoog en Ameland. Sinds 2016 is Dokkum dankzij de Centrale As aangesloten op een vernieuwd wegennetwerk richting Leeuwarden, Drachten, Heerenveen en Groningen.

Deze informatie is door ons met de nodige zorgvuldigheid samengesteld, veelal aan de hand van de door verkoper aan ons ter hand gestelde gegevens en tekeningen. Onzerzijds wordt echter geen enkele aansprakelijkheid aanvaard voor enige onvolledigheid, onjuistheid of anderszins, dan wel de gevolgen daarvan. Dit geldt voor onder meer de opgegeven maten, oppervlakten, isolatie en ouderdom van technische installaties.

Toelichtingsclausule NEN2580: De Meetinstructie is gebaseerd op de NEN2580. De Meetinstructie is bedoeld om een meer eenduidige manier van meten toe te passen voor het geven van een indicatie van de gebruiksoppervlakte. De Meetinstructie sluit verschillen in meetuitkomsten niet volledig uit, door bijvoorbeeld interpretatieverschillen, afrondingen of beperkingen bij het uitvoeren van de meting.

Overdracht
Status
Beschikbaar
Vraagprijs
€ 550.000,-
Aanvaarding
In overleg
Bouwvorm
Soort object
Woonhuis
Soort
Eengezinswoning
Soort dak
Zadeldak
Type woning
Vrijstaande woning
Bouwjaar
1995
Bouwvorm
Bestaande bouw
Oppervlaktes en inhoud
Woonoppervlakte
119 m2
Perceel oppervlakte
426 m2
Externe bergruimte
4 m2
Inhoud
510 m3
Aantal kamers
5
Aantal slaapkamers
4
Tuin
Tuinen
Achtertuin, Voortuin
Achterom
Nee
Schuur / Berging
Schuur
Vrijstaand hout
Garage
Aangebouwd steen
Parkeer faciliteiten
Op eigen terrein
Voorzieningen
Voorzieningen
TV kabel, Zonnepanelen
Onderhoud
Permanente bewoning
Ja
Onderhoud binnen
Goed
Onderhoud buiten
Goed
Huidig gebruik
Woonruimte
Huidige bestemming
Woonruimte
Energie
Energieklasse
B
Energie einddatum
15 april 2035
Warmwater
CV ketel
Verwarming
CV ketel
Bouwjaar
2011