Eengezinswoning 8 slaapkamers260 m2 woonoppervlakte

Skûlestrjitte 33, 9123 KB, Mitselwier

Onder bod
€ 489.000,- k.k.

Groot gezin? Mantelzorgwoning? Gastenverblijf? Kantoor aan huis? Levensloopbestendig wonen? Deze woning biedt ongekend veel mogelijkheden!

Sommige woningen moet je gewoon zelf ervaren. Dit is er zo één. De oorspronkelijke woning uit 1993 is in 1999 uitgebreid met een tweede, kleinere woning aan de voorzijde. Deze ruimte is eerder gebruikt als mantelzorgwoning en beschikt over een eigen slaapkamer en badkamer. Met het plaatsen van een keuken kan dit gedeelte desgewenst weer als zelfstandige woonruimte worden ingericht. Daarnaast is aan de oorspronkelijke woning een zijbeuk toegevoegd, die nu dienstdoet als een heerlijke, lichte woonkamer met openslaande deuren en een overkapping aan de voorzijde.

Indeling

Begane grond:
Via de ruime entree betreed je de woning aan de zijkant. In de hal bevinden zich de trap naar de eerste verdieping, het toilet met fonteintje en de meterkast. Vanuit de hal kom je in de ruime keuken, voorzien van een kookeiland, inbouwapparatuur en een vaste kast. Aansluitend ligt de bijkeuken met witgoedaansluitingen, de cv-ketel en een loopdeur naar de oprit.

De open keuken staat in verbinding met de woonkamer aan de achterzijde van de woning. Deze ruimte is royaal, licht en voorzien van openslaande deuren naar de tuin. Vanuit de keuken bereik je bovendien een multifunctionele kamer met vaste kast, ideaal als speelkamer, werkruimte, hobbyruimte of extra slaapkamer.

Via deze multifunctionele ruimte kom je in het voorste gedeelte van de woning. Hier vind je een ruime slaapkamer met openslaande deuren en een eigen buitendeur. Aangrenzend bevinden zich een royale berging (die eventueel bij de slaapkamer kan worden betrokken) en een ruime badkamer met ligbad, douche, wastafel en toilet.

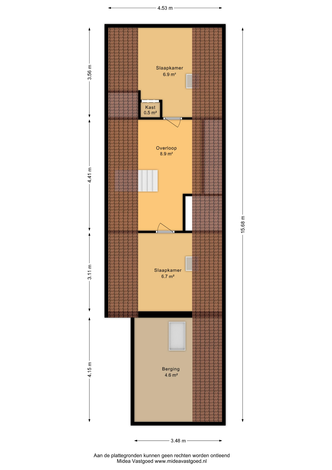
Eerste verdieping:
Op de eerste verdieping bevinden zich de overloop, een bergkast, een tweede badkamer met douche, toilet en wastafel en maar liefst vijf slaapkamers. Het zijn stuk voor stuk ruime kamers. Met een slimme aanpassing, zoals het verplaatsen van een muur, kunnen alle slaapkamers rechtstreeks vanaf de overloop bereikbaar worden gemaakt.

Tweede verdieping:
Via een vaste trap bereik je de tweede verdieping. Hier bevinden zich nog eens twee slaapkamers en extra bergruimte. De bergruimte aan de voorzijde is bereikbaar via een vlizotrap vanuit de voorste slaapkamer op de eerste verdieping.

Buitenruimte en bijgebouwen:
Op het perceel staat een aangebouwde houten garage met kanteldeur en een loopdeur naar de tuin. In de schuur is er een mogelijkheid om krachtstroom aan te sluiten. De fraai aangelegde tuin ligt op het noordwesten en biedt vrij uitzicht over de landerijen. Met een vlonder, meerdere zitplekken en veel groen is dit een heerlijke plek om buiten te genieten. Aan de voorzijde is volop parkeergelegenheid op eigen terrein, maar er is desgewenst ook ruimte om extra tuin aan te leggen.

Kenmerken:
* Energielabel A
* Perceeloppervlakte: 575 m²
* Woonoppervlakte: 260 m²
* Vloer-, dak- en muurisolatie
* 8 slaapkamers
* 2 badkamers
* Zijbeuk met overkapping
* Parkeren op eigen terrein en op openbare parkeerplekken
* 10 zonnepanelen
* Levensloopbestendig wonen mogelijk

Kom gerust deze woning bezichtigen om je te laten verbazen over de ruimte en de mogelijkheden.

Locatie:
Het dorp beschikt over een basisschool, horecagelegenheid en tennisbanen. Op korte afstand de tandarts (Dokkum) en de huisarts (Niawier). Mitselwier ligt op circa 6 km afstand van de historische stad Dokkum. Op circa 10 autominuten vind je de veerboot van Lauwersoog naar Schiermonnikoog en het Nationale Park Lauwersmeer, een prachtig natuurgebied met bijzondere bloemen, enorme aantallen vogels en geweldige vergezichten. Door de Centrale As (N356 Dokkum-Nijega) zijn zowel Dokkum, Leeuwarden, Drachten en de uitvalswegen naar de Randstad uitstekend bereikbaar.

Deze informatie is door ons met de nodige zorgvuldigheid samengesteld, veelal aan de hand van de door verkoper aan ons ter hand gestelde gegevens en tekeningen. Onzerzijds wordt echter geen enkele aansprakelijkheid aanvaard voor enige onvolledigheid, onjuistheid of anderszins, dan wel de gevolgen daarvan. Dit geldt voor onder meer de opgegeven maten, oppervlakten, isolatie en ouderdom van technische installaties.

Toelichtingsclausule NEN2580: De Meetinstructie is gebaseerd op de NEN2580. De Meetinstructie is bedoeld om een meer eenduidige manier van meten toe te passen voor het geven van een indicatie van de gebruiksoppervlakte. De Meetinstructie sluit verschillen in meetuitkomsten niet volledig uit, door bijvoorbeeld interpretatieverschillen, afrondingen of beperkingen bij het uitvoeren van de meting.

Overdracht
Status
Onder bod
Vraagprijs
€ 489.000,-
Aanvaarding
In overleg
Bouwvorm
Soort object
Woonhuis
Soort
Eengezinswoning
Soort dak
Samengesteld dak
Type woning
Vrijstaande woning
Bouwjaar
1993
Bouwvorm
Bestaande bouw
Ligging
Aan rustige weg, In woonwijk, Vrij uitzicht, Landelijk gelegen
Oppervlaktes en inhoud
Woonoppervlakte
260 m2
Perceel oppervlakte
575 m2
Externe bergruimte
0 m2
Inhoud
1.038 m3
Aantal kamers
10
Aantal slaapkamers
8
Tuin
Tuinen
Tuin rondom
Hoofdtuin
Tuin rondom
Achterom
Ja
Schuur / Berging
Garage
Aangebouwd steen
Parkeer faciliteiten
Openbaar parkeren, Op eigen terrein
Voorzieningen
Voorzieningen
Mechanische ventilatie, TV kabel, Zonnepanelen, Natuurlijke ventilatie
Onderhoud
Permanente bewoning
Ja
Onderhoud binnen
Goed
Onderhoud buiten
Goed
Huidig gebruik
Woonruimte
Huidige bestemming
Woonruimte
Energie
Energieklasse
A
Energie einddatum
30 augustus 2028
Warmwater
CV ketel
Verwarming
CV ketel
Bouwjaar
2023