Suupmarkt 18, 9101 LM, Dokkum
Wonen aan de gracht, midden in de binnenstad met een royale garage.
Wat een unieke kans is dit. Aan de prachtige Suupmarkt, midden in het historische hart van Dokkum, staat deze ruime en karaktervolle woning met maar liefst vijf slaapkamers, een grote garage en een heerlijk beschutte stadstuin. Hier woon je aan de gracht, met uitzicht waar je nooit op uitgekeken raakt, en geniet je van alle gemakken die de binnenstad te bieden heeft.
De woning is in de loop der jaren grondig verbouwd en goed geïsoleerd, waardoor je profiteert van het comfort van nu. De royale indeling biedt volop mogelijkheden. Of je nu een groot gezin hebt, aan huis wilt werken of ruimte zoekt voor je hobby’s, het kan hier allemaal.
Achter de woning ligt een fijne stadstuin die je helemaal naar eigen wens kunt inrichten. En wat te denken van de ruime garage wat een echte zeldzaamheid is in de binnenstad. Er is plek voor de auto, meerdere fietsen en nog voldoende opslagruimte.
In de zomer geniet je met een kop koffie aan de voorzijde van het huis van het levendige uitzicht over de gracht, of trek je je juist even terug in de stadstuin, wat bereikbaar is via openslaande deuren of bijkeuken Dit huis biedt het beste van twee werelden: de charme van de stad en de ruimte van een gezinswoning.
Een woning als deze komt zelden op de markt. Laat deze kans niet voorbijgaan en ontdek zelf hoe bijzonder het wonen is aan de Suupmarkt 18 in Dokkum.
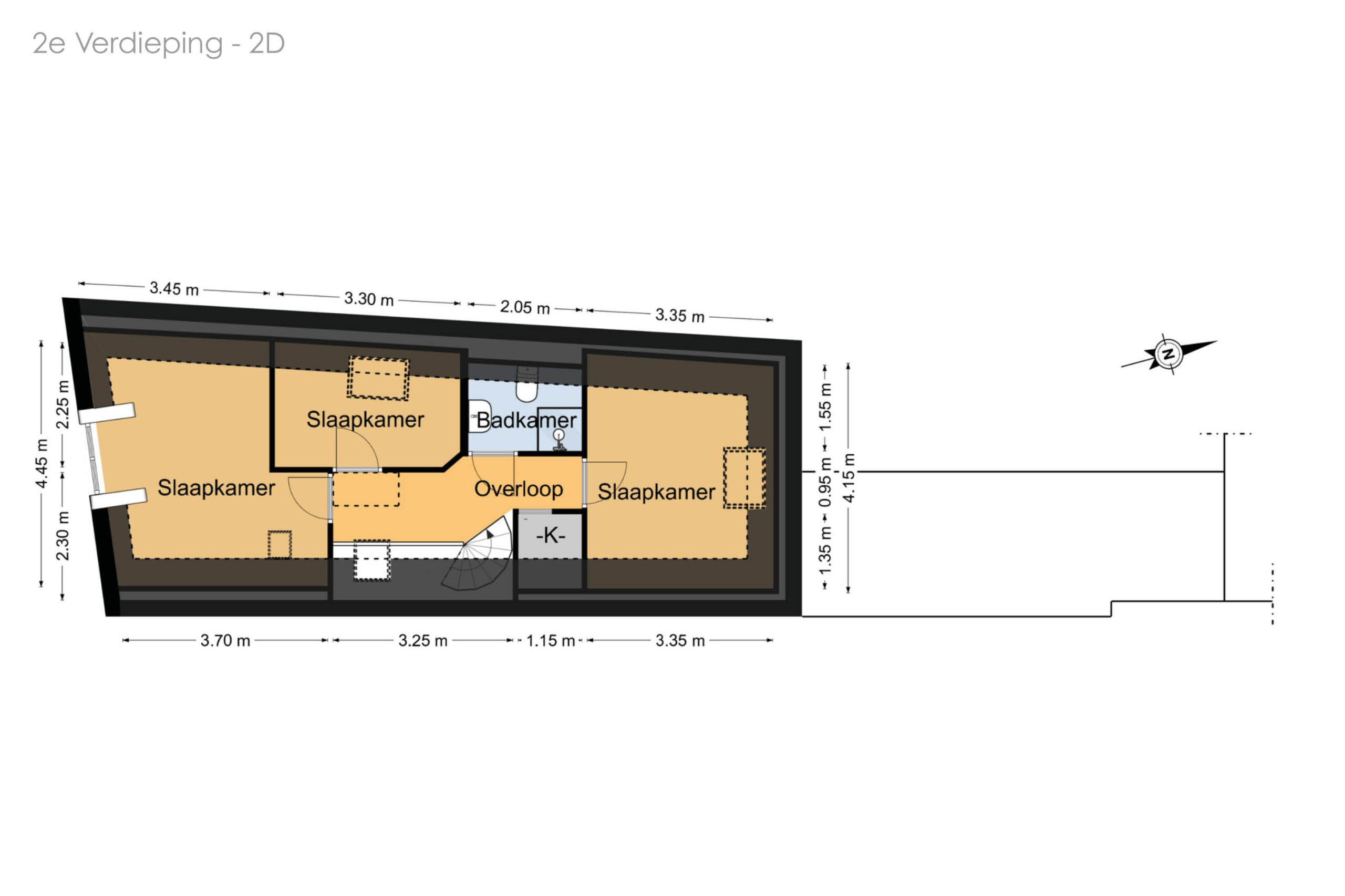
Bijzonderheden:
- Unieke ligging aan de gracht
- 5 slaapkamers
- 3 toiletten
- 2 badkamers
- Vloerverwarming
- Pellet kachel
- Electrische garagedeur
- Goed geïsoleerd
- Antikalksteen apparaat
- Eigen royale garage en bergruimte
- bijkeuken
- Lift naar eerste en tweede verdieping
- Zolder
- Heerlijke binnentuin met veel mogelijkheden
- Authentiek wonen in het hart van Dokkum
Locatie:
Dokkum is één van de Friese Elfsteden en heeft een regionale verzorgingsfunctie voor heel Noordoost- Friesland. De vestingstad Dokkum met haar prachtige historische binnenstad, beschikt over een goed voorzieningenniveau met o.a. een ziekenhuis, diverse scholen (zowel basis als voortgezet en speciaal onderwijs), een tropisch zwembad en diverse sport faciliteiten en verenigingen. Dokkum is gelegen in de gemeente Noardeast Fryslan en heeft ca. 14.000 inwoners. Dokkum ligt vlakbij het schitterende Nationaal Park Lauwersmeer en de Friese wadden en is enkele kilometers verwijdert van Lauwersoog en Holwerd, de opstapplaatsen naar Schiermonnikoog en Ameland. Sinds 2016 is Dokkum dankzij de Centrale As aangesloten op een vernieuwd wegennetwerk richting Leeuwarden, Drachten, Heerenveen en Groningen.
Deze informatie is door ons met de nodige zorgvuldigheid samengesteld, veelal aan de hand van de door verkoper aan ons ter hand gestelde gegevens en tekeningen. Onzerzijds wordt echter geen enkele aansprakelijkheid aanvaard voor enige onvolledigheid, onjuistheid of anderszins, dan wel de gevolgen daarvan. Dit geldt voor onder meer de opgegeven maten, oppervlakten, isolatie en ouderdom van technische installaties.
Toelichtingsclausule NEN2580: De Meetinstructie is gebaseerd op de NEN2580. De Meetinstructie is bedoeld om een meer eenduidige manier van meten toe te passen voor het geven van een indicatie van de gebruiksoppervlakte. De Meetinstructie sluit verschillen in meetuitkomsten niet volledig uit, door bijvoorbeeld interpretatieverschillen, afrondingen of beperkingen bij het uitvoeren van de meting.










































































































