Eengezinswoning 3 slaapkamers173 m2 woonoppervlakte

Tusken de Fearten ong, 9101 NW, Dokkum

Onder optie
€ 553.500,- v.o.n.

Luxe halfvrijstaande nieuwbouwwoning – Tusken de Fearten, Dokkum

In de nieuwe woonwijk Tusken de Fearten ontwikkelt aannemingsmaatschappij Jellema een serie moderne, duurzame woningen op een unieke groene locatie aan de rand van Dokkum. Omringd door water, weides en rust, en toch op korte afstand van het historische centrum, woont u hier in een omgeving die voelt als buitengebied met het comfort van nieuwbouw.

Deze halfvrijstaande woning wordt aangeboden met de 2.40 meter uitbouw, waardoor een royale woonkamer en grote woonkeuken ontstaan. De woning heeft een moderne uitstraling met het comfort van nu, passend bij het natuurlijke karakter van de Weideterp.

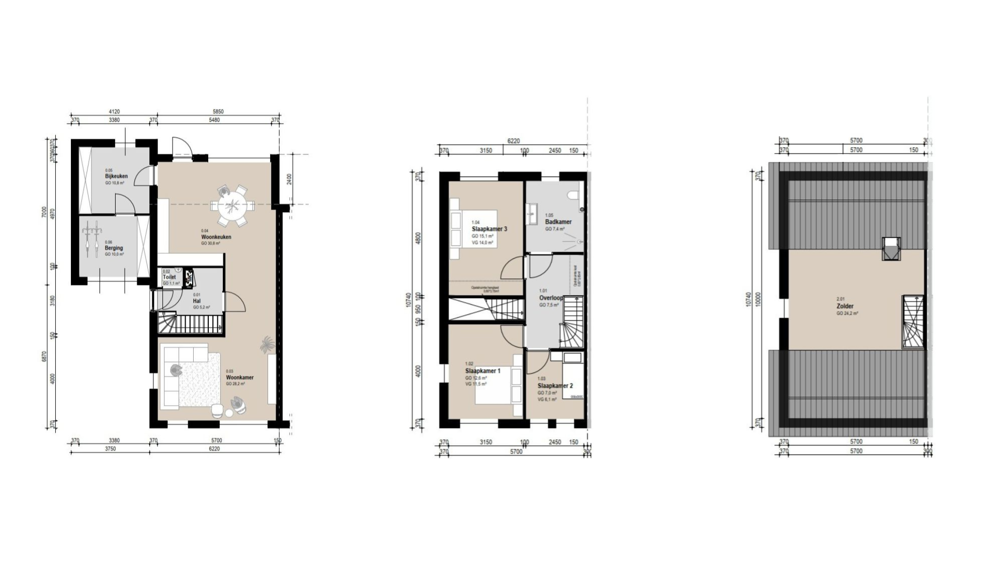
Indeling:
- Riante woonkamer + ruime woonkeuken
- Bijkeuken en berging
- 3 slaapkamers en complete badkamer
- Grote zolder met mogelijkheden voor extra kamers

Duurzaam & energiezuinig:
- Gasloos, lucht-water warmtepomp
- Vloerverwarming
- PV-panelen
- Uitstekende isolatie en HR++ beglazing

Een comfortabele gezinswoning op een prachtige plek waar natuur, water en wonen samenkomen.
Interesse? Neem contact op met Regiomakelaardij in Dokkum voor meer informatie.

Locatie:
Dokkum is één van de Friese Elfsteden en heeft een regionale verzorgingsfunctie voor heel Noordoost- Friesland. De vestingstad Dokkum met haar prachtige historische binnenstad, beschikt over een goed voorzieningenniveau met o.a. een ziekenhuis, diverse scholen (zowel basis als voortgezet en speciaal onderwijs), een tropisch zwembad en diverse sport faciliteiten en verenigingen. Dokkum is gelegen in de gemeente Noardeast Fryslan en heeft ca. 14.000 inwoners. Dokkum ligt vlakbij het schitterende Nationaal Park Lauwersmeer en de Friese wadden en is enkele kilometers verwijdert van Lauwersoog en Holwerd, de opstapplaatsen naar Schiermonnikoog en Ameland. Sinds 2016 is Dokkum dankzij de Centrale As aangesloten op een vernieuwd wegennetwerk richting Leeuwarden, Drachten, Heerenveen en Groningen.

Deze informatie is door ons met de nodige zorgvuldigheid samengesteld, veelal aan de hand van de door verkoper aan ons ter hand gestelde gegevens en tekeningen. Onzerzijds wordt echter geen enkele aansprakelijkheid aanvaard voor enige onvolledigheid, onjuistheid of anderszins, dan wel de gevolgen daarvan. Dit geldt voor onder meer de opgegeven maten, oppervlakten, isolatie en ouderdom van technische installaties.

Toelichtingsclausule NEN2580: De Meetinstructie is gebaseerd op de NEN2580. De Meetinstructie is bedoeld om een meer eenduidige manier van meten toe te passen voor het geven van een indicatie van de gebruiksoppervlakte. De Meetinstructie sluit verschillen in meetuitkomsten niet volledig uit, door bijvoorbeeld interpretatieverschillen, afrondingen of beperkingen bij het uitvoeren van de meting.

Overdracht
Status
Onder optie
Vraagprijs
€ 553.500,-
Aanvaarding
In overleg
Bouwvorm
Soort object
Woonhuis
Soort
Eengezinswoning
Soort dak
Zadeldak
Type woning
Twee onder één kapwoning
Bouwjaar
2026
Bouwvorm
Nieuwbouw
Ligging
Aan water, Aan rustige weg, In woonwijk
Oppervlaktes en inhoud
Woonoppervlakte
173 m2
Perceel oppervlakte
512 m2
Externe bergruimte
0 m2
Inhoud
494 m3
Aantal kamers
5
Aantal slaapkamers
3
Tuin
Tuinen
Achtertuin, Voortuin
Achterom
Nee
Schuur / Berging
Schuur
Aangebouwd steen
Garage
Geen garage
Parkeer faciliteiten
Op eigen terrein
Voorzieningen
Voorzieningen
Zonnepanelen
Onderhoud
Permanente bewoning
Ja
Onderhoud binnen
Uitstekend
Onderhoud buiten
Uitstekend
Huidig gebruik
Woonruimte
Huidige bestemming
Woonruimte
Energie
Verwarming
Vloerverwarming geheel, Warmtepomp