Bedrijfsruimte 4.479 m2 oppervlakte

Grândyk 3, 9151 AE, Holwert

€ 425.000,- k.k.

Te koop: royale bedrijfshal op een deels afgesloten terrein in Holwert.

- Vraagprijs: € 425.000,- k.k.

Bent u op zoek naar een royale bedrijfshal in Holwert met veel mogelijkheden? Dan bent u bij Grândyk 3 aan het juiste adres.

De bedrijfshal is uiterst geschikt voor grotere bedrijfsactiviteiten die wat extra ruimte vereisen. Bovendien beschikt de bedrijfshal over een royaal buitenterrein, wat parkeergelegenheid biedt. Dankzij de goede ligging aan de Grândyk 3 in Holwert is de hal gemakkelijk bereikbaar, wat het aantrekkelijk maakt voor lokale bedrijven en ondernemers uit de regio.

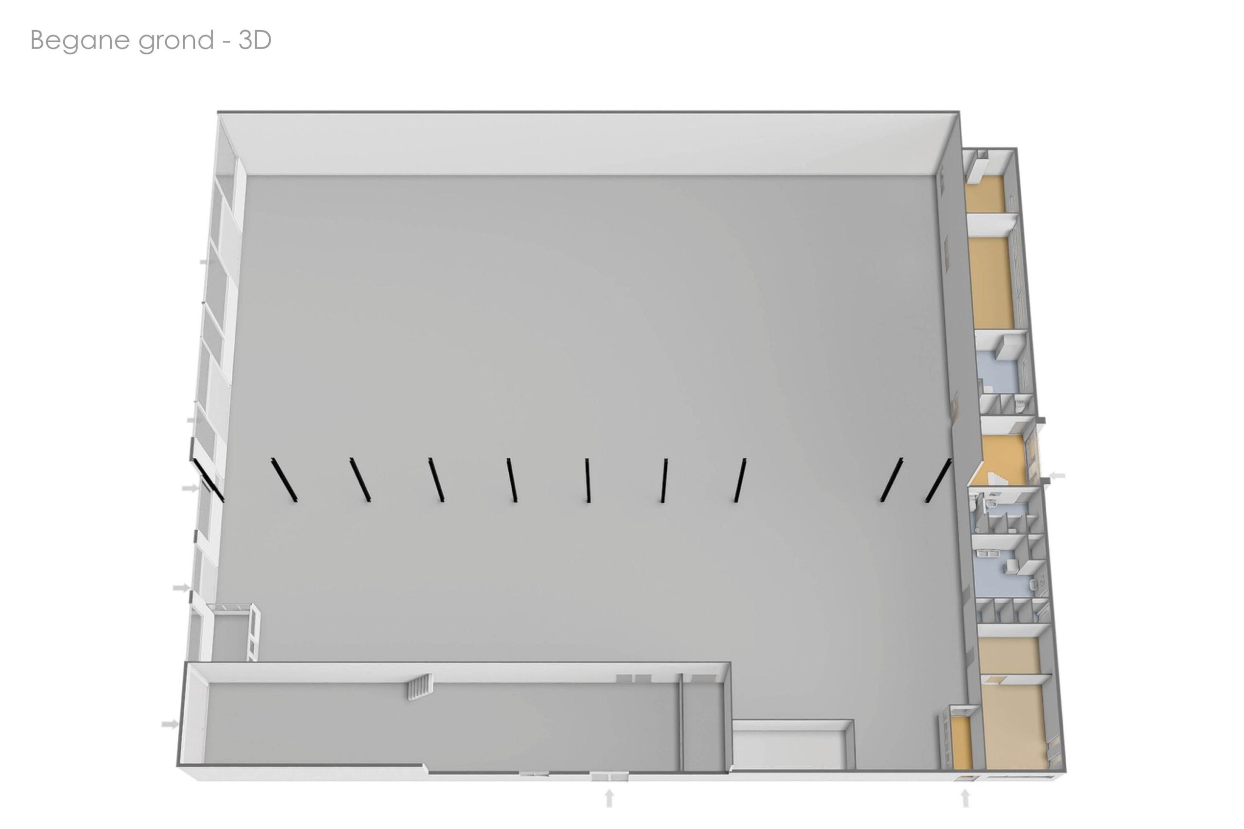
Op de begane grond bevindt zich een royale bedrijfshal met een ruime werkplaats, aangevuld met diverse praktische voorzieningen. Zo zijn er een keuken, sanitair en enkele kantoorruimtes aanwezig, waardoor deze verdieping optimaal functioneert voor zowel productie als ondersteunende werkzaamheden.

De eerste verdieping beschikt eveneens over een doordachte indeling met meerdere kantoorruimtes. Daarnaast vind je hier een keuken en sanitair, waardoor deze etage uitstekend geschikt is als volwaardige kantooromgeving of ondersteunende werkvloer.

Dankzij de combinatie van een ruime bedrijfshal en goed ingedeelde kantoorruimtes op beide verdiepingen is dit object geschikt voor bedrijven die behoefte hebben aan zowel opslag- en werkruimte als kantoorvoorzieningen.

De bedrijfshal staat op een terrein dat deels is beveiligd met een hek.

Oppervlaktes:
- 1381 m² bedrijfsruimte
- 338 m² kantoorruimte
- 2760 m² buitenterrein

Bijzonderheden:
- De bedrijfshal biedt voor ondernemers veel mogelijkheden.
- Op korte (fiets-)afstand van het dorp Holwert
- Gelegen aan de weg richting de veerboot naar Ameland
- As is Where is clausule van toepassing
- De bedrijfsruimte wordt vrij van huur en gebruik geleverd

Meer weten? Neem contact op met ons kantoor!

Overdracht
Status
Verkocht
Prijs
€ 425.000,- k.k.
Aanvaarding
In overleg
Bouwvorm
Bouwvorm
Bestaande bouw
Bouwjaar
1950
Bouwjaar toelichting
Oppervlaktes en inhoud
Soort Object
Bedrijfsruimte
Totale oppervlakte
4.479 m2
Perceeloppervlakte
10.088 m2
Oppervlakte bedrijfsruimte
1.381 m2
Oppervlakte kantoorruimte
338 m2
Oppervlakte terrein
2.760 m2
Overig
Locatie
BEDRIJVENTERREIN
Aantal verdiepingen
2
Onderhoud binnen
Goed
Onderhoud buiten
Goed