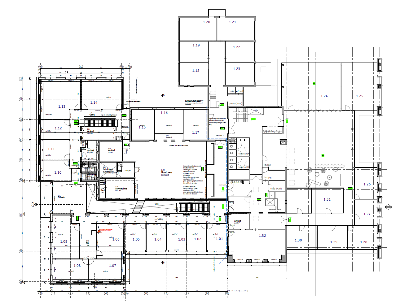
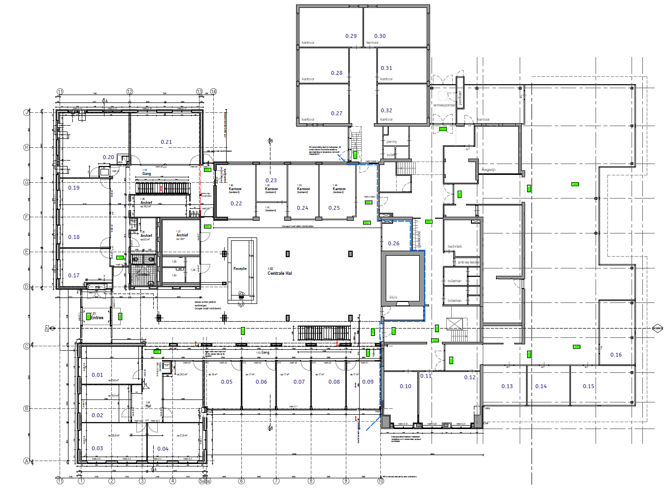
Kantoorruimte 3.000 m2 oppervlakte

Haadwei 51, 9104 BC, DamwÂld

€ 100,- per m2 per jaar

In dit representatieve en moderne pand zijn diverse ruimtes te huur. Ruimtes geschikt voor kantoor maar ook praktijkruimtes voor bijvoorbeeld een schoonheidssalon. Er zijn diverse afmetingen beschikbaar, van 17 m² maar ook van 47 m². In overleg kan een ruimte worden aangepast naar de wensen van huurder.

Algemeen
In het centrum van Damwâld bevindt zich dit representatieve en moderne kantoorpand. Het pand is uitstekend bereikbaar met zowel de auto als het openbaar vervoer (bus). Leeuwarden en Drachten zijn op minder dan 30 autominuten bereikbaar. De centrale hal is modern en onder architectuur ingericht en is voor gemeenschappelijk gebruik. De huurmogelijkheden zijn flexibel (vanaf één kantoorunit tot gehele kantoorvleugel). Op het terrein bevinden zich ca. 80 parkeerplaatsen en een aantal laadpalen. Het kantoor wordt in de huidige, zeer goede en complete staat opgeleverd. Alle verhuurbare eenheden zijn instapklaar. Wanden, vloeren en plafonds zijn in het gehele pand volledig en modern afgewerkt. Ook de raambekleding -jaloezieën- is in veel gevallen zo goed als nieuw. Door de toepassing van veel glas (grote ramen en glazen scheidingswanden) is er relatief veel lichttoetreding, waardoor het een aangename werkomgeving is. De scheidingswanden zijn doorgaans in matglas uitgevoerd, waardoor er toch veel privacy is.

Het pand beschikt over de volgende voorzieningen:
- Luxe pantry’s
- Meerdere (gescheiden) toiletvoorzieningen
- voorzien van energiezuinige lucht warmte pompen
- Airco
- Systeemplafonds met led verlichting
- Luchtbehandelingsinstallatie
- Kabelgoten voorzien van data, telefonie en elektra
- Circa 80 parkeerplaatsen
- Laadpalen voor de auto
- Wifi

Indien gewenst:
- Uitgerust met kantoormeubilair

Huurprijs algemeen
Vanaf € 100,- per m² per jaar. Archief ruimte en stallingsruimte vanaf € 75,- per m² per jaar.
Over de huurprijs is geen btw verschuldigd. (Mede)gebruik van het parkeerterrein is bij de huurprijs inbegrepen.

Servicekosten
Op basis van voorschot en nacalculatie bedragen de servicekosten € 45,- per m² per jaar te vermeerderen met BTW. Per kantoor van ongeveer 20 m² wordt er 5 m² toeslag voor gebruik gezamenlijke ruimtes berekend. De servicekosten zijn o.a. opgebouwd uit kosten voor verwarming en airco, verlichting, onderhoud installaties, afval, koffie en thee, tuinonderhoud, schoonmaak van gemeenschappelijke ruimten, kantoren en glasbewassing.

Waarborgsom
Ter grootte van 2 maanden huur. Huurtermijn 5 jaar met aansluitend telkens 5 jaren. Kortere en langere periodes zijn bespreekbaar.

Indexering
Jaarlijks conform de consumentenprijsindex reeks CPI-alle huishoudens 2015=100

Meer informatie:
krushoeke.com

Kaart bestemmingsplan:
https://www.ruimtelijkeplannen.nl/viewer/view

Regels bestemmingsplan:
https://www.ruimtelijkeplannen.nl/documents/NL.IMRO.1891.BpDamwald-ON01/r_NL.IMRO.1891.BpDamwald-ON01.html#_7_Centrum

Overdracht
Status
Te huur
Prijs
€ 100,- per m2 per jaar
Aanvaarding
In overleg
Servicekosten
€ 45,- p/m
Bouwvorm
Bouwvorm
Bestaande bouw
Bouwjaar
1975
Bouwjaar toelichting
Oppervlaktes en inhoud
Soort Object
Kantoorruimte
Totale oppervlakte
3.000 m2
Oppervlakte kantoorruimte
3.000 m2
Overig
In units vanaf
12 m² kantoorruimte
Locatie
OVERIG
Aantal verdiepingen
1
Energieklasse
A
Onderhoud binnen
Goed
Onderhoud buiten
Goed