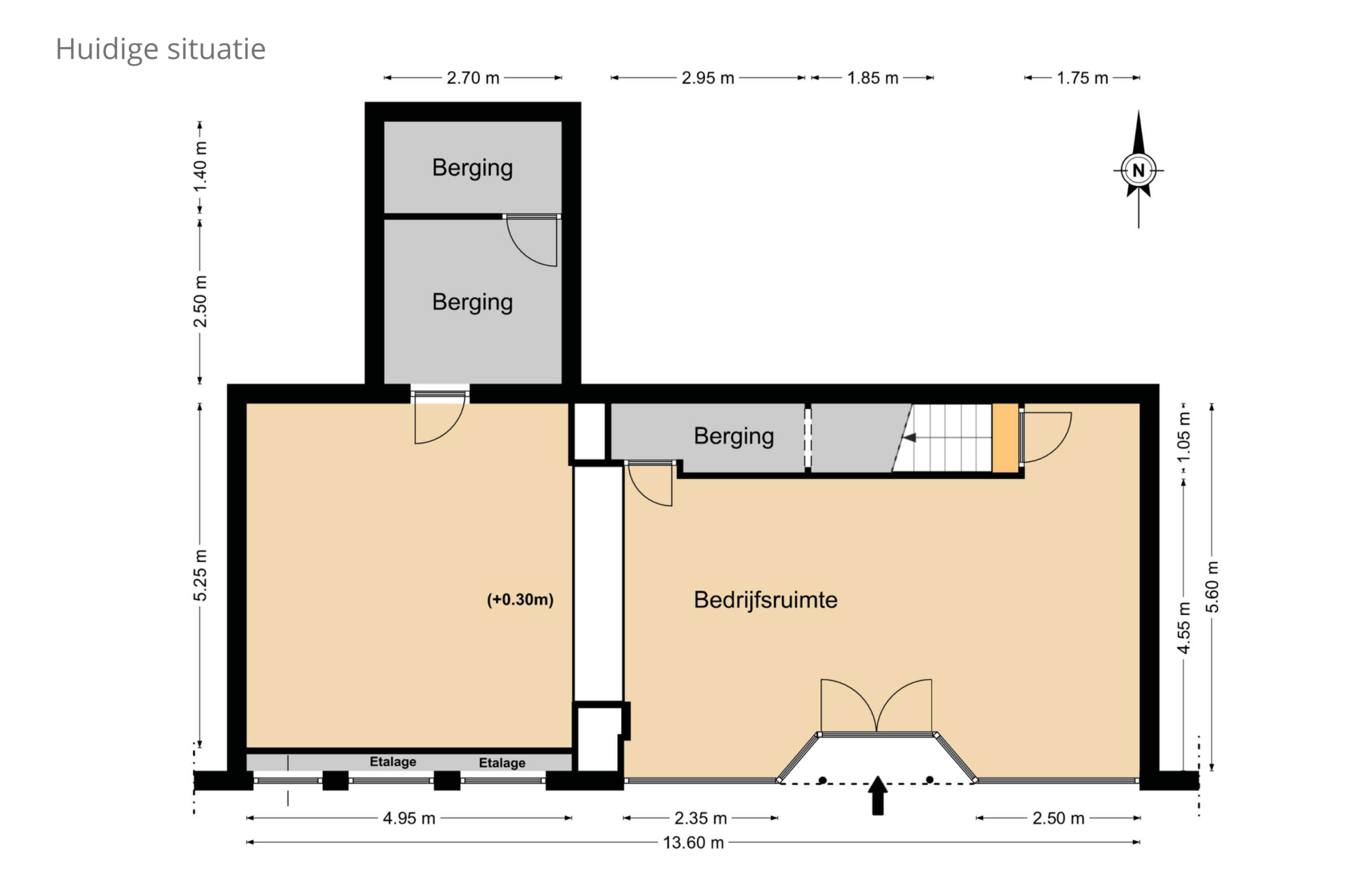
Winkelruimte 36 m2 oppervlakte

Waagstraat 15, 9101 LC, Dokkum

€ 1.000,- p/m.

Winkelruimte te huur aangeboden op A-locatie aan de Waagstraat 15 (stadskern) in Dokkum.

Betreft een winkelruimte op de begane grond en ruimte voor opslag/kantoor. De ruimte is nog naar eigen inzicht en in overleg met de verhuurder in te delen. Met ca. 37 m² vloeroppervlakte is dit de perfecte plek voor ondernemers die willen ondernemen in een levendig winkelgebied.

Bijzonderheden:
- Op A1-locatie gelegen
- Meerdere grote winkelketens bevinden zich hier: zoals Hema, Scapino, Xenos, DA, Kruidvat.
- Exclusief gas, water en elektra

Openbaar vervoer en parkeergelegenheid:
Bushalte is op 5 minuten loopafstand van het pand, diverse parkeerlocaties op ca. 5 minuten loopafstand.

Overdracht
Status
Te huur
Prijs
€ 1.000,- p/m.
Aanvaarding
In overleg
Servicekosten
€ 0,- p/m
Bouwvorm
Bouwvorm
Bestaande bouw
Bouwjaar
1900
Bouwjaar toelichting
Oppervlaktes en inhoud
Soort Object
Winkelruimte
Totale oppervlakte
36 m2
Oppervlakte winkelruimte
36 m2
Overig
Locatie
WINKELGEBIED_STADSCENTRUM
Aantal verdiepingen
1
Energieklasse
E
Onderhoud binnen
Redelijk
Onderhoud buiten
Goed