Eengezinswoning 6 slaapkamers187 m2 woonoppervlakte

Oane Binnesloane 15, 9287 MZ, Twijzelerheide

€ 699.000,- k.k.

Prachtige rietgedekte woonboerderij op ruim erf en uitzicht over de landerijen.

Deze royale en levensloopbestendige woning combineert ruimte, comfort en een prachtige ligging in het Friese buitengebied. De woning is degelijk en met veel zorg gebouwd in 2007, goed geïsoleerd en daarna keurig onderhouden. Met een woonoppervlakte van maar liefst 187 m², zes slaapkamers en op een perceel van 3.284 m² is er volop leefruimte, zowel binnen als buiten. Naast de woning zijn 2 garages gebouwd met plek voor meerdere auto's.

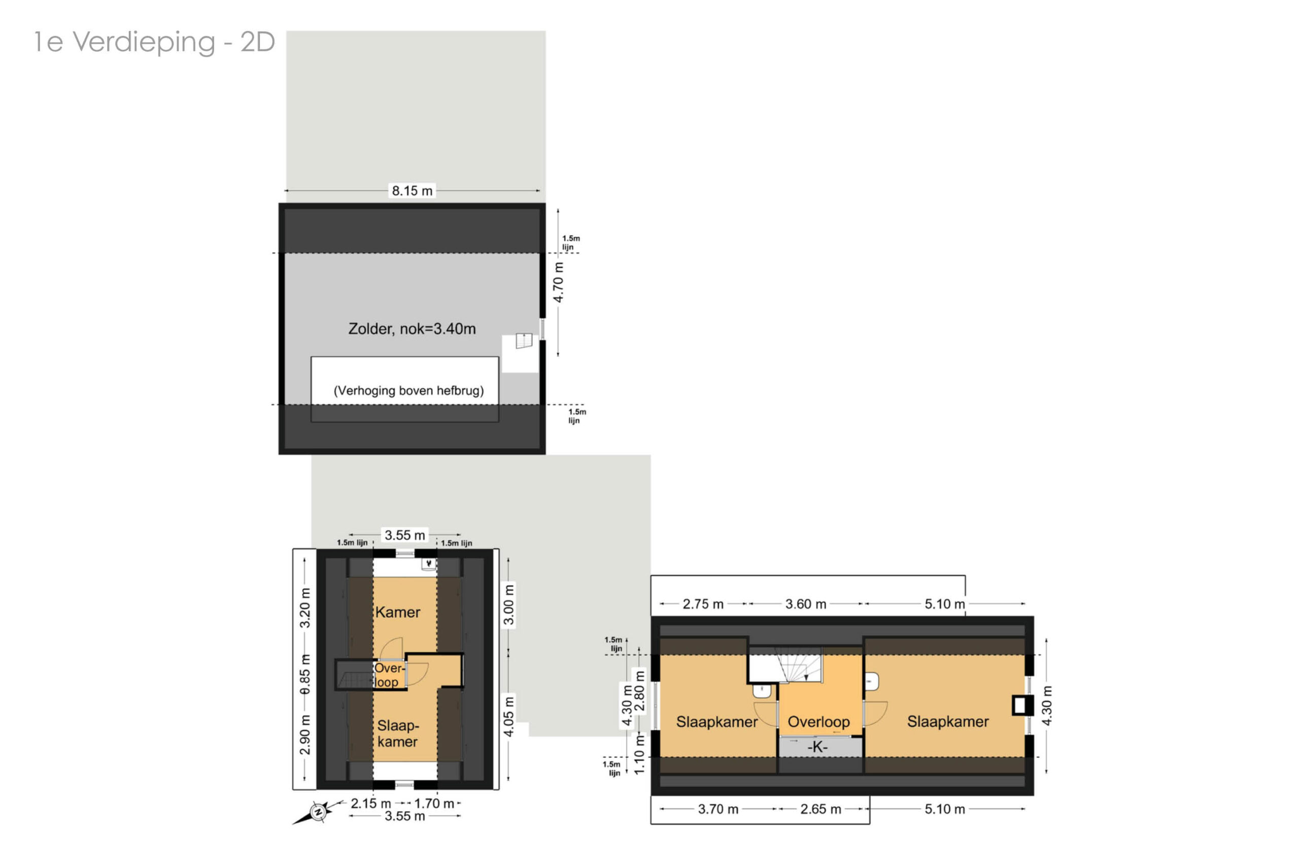
Bij binnenkomst kom je in de ruime hal. Vanuit daar kun je rechtsaf naar de voorste woning en linksaf naar het achterste gedeelte.

Indeling voorste woonhuis:
Vanuit de hal kom je in de gang waar het toilet zich bevindt, de ruime bijkeuken met witgoedaansluitingen, de trapopgang naar de eerste verdieping en een trapkast. De fijne woonkamer is voorzien van openslaande deuren naar de tuin, heeft veel ramen voor extra daglicht en een open haard. Aangrenzend aan de woonkamer bevindt zich de open keuken, deze is uitgerust met diverse inbouwapparatuur. Op de eerste verdieping zijn hier twee ruime slaapkamers te vinden. De overloop biedt hier opberg mogelijkheden.

Indeling achterste gedeelte:
Vanuit de hal kom je in het achterste gedeelte van de woning. Hier zijn drie slaapkamers op de begane grond en één op op de eerste verdieping. Op deze verdieping is tevens een extra kamer aanwezig. De badkamer op de begane grond heeft een bad, douche, (tweede) toilet en een wastafelmeubel.

De berging is als een sportkamer ingericht, ideaal voor thuisfitness of hobbyruimte. Natuurlijk is dit ook een prima plek voor een ruime werk- of een hobbykamer. Daarnaast zijn er twee garages aanwezig (waarvan de grote garage een eigen zolder heeft), wat zorgt voor voldoende parkeergelegenheid en extra opbergruimte. De woning staat op een ruim perceel, die rondom het huis is gelegen. In een gedeelte van de tuin is een terras en een overkapping gecreëerd, beide gunstig gelegen op het zuiden.

Bijzonderheden:
- Woonoppervlakte van 187 m²
- Perceelgrootte van 3.284 m²
- 6 slaapkamers, waarvan 3 op de begane grond
- Badkamer op de begane grond
- Levensloopbestendig
- Ruime woonkamer met openslaande deuren
- Muur,- dak-, en vloerisolatie
- Garage is geïsoleerd (m.u.v. dak)
- Krachtstroom aanwezig
- Terras en overkapping in de tuin, gelegen op het zuiden

Locatie:
Twijzelerheide is een dorp in de gemeente Achtkarspelen, gelegen in het noordoosten van Friesland. Het ligt tussen de uitgestrekte landerijen en maakt deel uit van het karakteristieke coulisselandschap van de Noardlike Fryske Wâlden. Vanuit het dorp kun je direct genieten van heerlijke wandel- en fietsroutes door de omliggende natuur. Met circa 1.800 inwoners biedt Twijzelerheide een rustige, landelijke woonomgeving met voldoende voorzieningen. Het dorp beschikt over twee basisscholen, enkele winkels en een actief verenigingsleven, waaronder diverse sportverenigingen. Voor meer uitgebreide voorzieningen ligt het aangrenzende dorp De Westereen op korte fietsafstand. Hier vind je supermarkten en een treinstation met snelle verbindingen naar Leeuwarden en Groningen. Dankzij de centrale ligging is Twijzelerheide bovendien een praktische uitvalsbasis naar steden als Leeuwarden, Groningen, Dokkum en Drachten.

Deze informatie is door ons met de nodige zorgvuldigheid samengesteld, veelal aan de hand van de door verkoper aan ons ter hand gestelde gegevens en tekeningen. Onzerzijds wordt echter geen enkele aansprakelijkheid aanvaard voor enige onvolledigheid, onjuistheid of anderszins, dan wel de gevolgen daarvan. Dit geldt voor onder meer de opgegeven maten, oppervlakten, isolatie en ouderdom van technische installaties.

Toelichtingsclausule NEN2580: De Meetinstructie is gebaseerd op de NEN2580. De Meetinstructie is bedoeld om een meer eenduidige manier van meten toe te passen voor het geven van een indicatie van de gebruiksoppervlakte. De Meetinstructie sluit verschillen in meetuitkomsten niet volledig uit, door bijvoorbeeld interpretatieverschillen, afrondingen of beperkingen bij het uitvoeren van de meting.

Overdracht
Status
Beschikbaar
Vraagprijs
€ 699.000,-
Aanvaarding
In overleg
Bouwvorm
Soort object
Woonhuis
Soort
Eengezinswoning
Soort dak
Samengesteld dak
Type woning
Vrijstaande woning
Bouwjaar
1944
Bouwvorm
Bestaande bouw
Ligging
Vrij uitzicht, Open ligging
Oppervlaktes en inhoud
Woonoppervlakte
187 m2
Perceel oppervlakte
3.284 m2
Externe bergruimte
158 m2
Inhoud
727 m3
Aantal kamers
9
Aantal slaapkamers
6
Tuin
Tuinen
Tuin rondom
Hoofdtuin
Tuin rondom
Achterom
Ja
Kwaliteit
Verzorgd
Schuur / Berging
Schuur
Aangebouwd steen
Garage
Aangebouwd steen
Parkeer faciliteiten
Op eigen terrein
Voorzieningen
Voorzieningen
Mechanische ventilatie, TV kabel, Glasvezel kabel, Natuurlijke ventilatie
Onderhoud
Permanente bewoning
Ja
Onderhoud binnen
Goed
Onderhoud buiten
Goed
Huidig gebruik
Woonruimte
Huidige bestemming
Woonruimte
Energie
Energieklasse
C
Energie einddatum
2 juni 2025
Warmwater
CV ketel
Verwarming
CV ketel
Bouwjaar
2022