Eengezinswoning 6 slaapkamers256 m2 woonoppervlakte

Tsjerkestrjitte 11, 9133 ME, Eanjum

€ 549.000,- k.k.

Op een fraaie locatie in het karakteristieke dorp Eanjum staat deze verrassend ruime en sfeervolle vrijstaande woning met aangebouwd pakhuis, royale tuin, garage, dakterras én een volledig ingerichte bed & breakfast. De woning is gebouwd in 1900 maar in de afgelopen jaren grondig gemoderniseerd, waardoor authentieke elementen en hedendaags wooncomfort naadloos samengaan.

Met een gebruiksoppervlakte van ca. 256 m² en maar liefst 6 slaapkamers biedt deze woning volop ruimte. Het multifunctionele pakhuis, dat thans in gebruik is als B&B, maakt de woning ideaal voor het combineren van wonen en werken, het genereren van extra inkomsten of het comfortabel ontvangen van gasten.

Indeling
Begane grond:
Entree, ruime en lichte woonkamer, moderne keuken (2022) voorzien van complete inbouwapparatuur, bijkeuken, toilet en toegang tot het pakhuis. Dit pakhuis is in 2019 volledig verbouwd en beschikt over vloerverwarming, eigen voorzieningen en wordt momenteel gebruikt als bed & breakfast. Uiteraard kan deze ruimte ook dienen als praktijkruimte, kantoor of gastenverblijf.

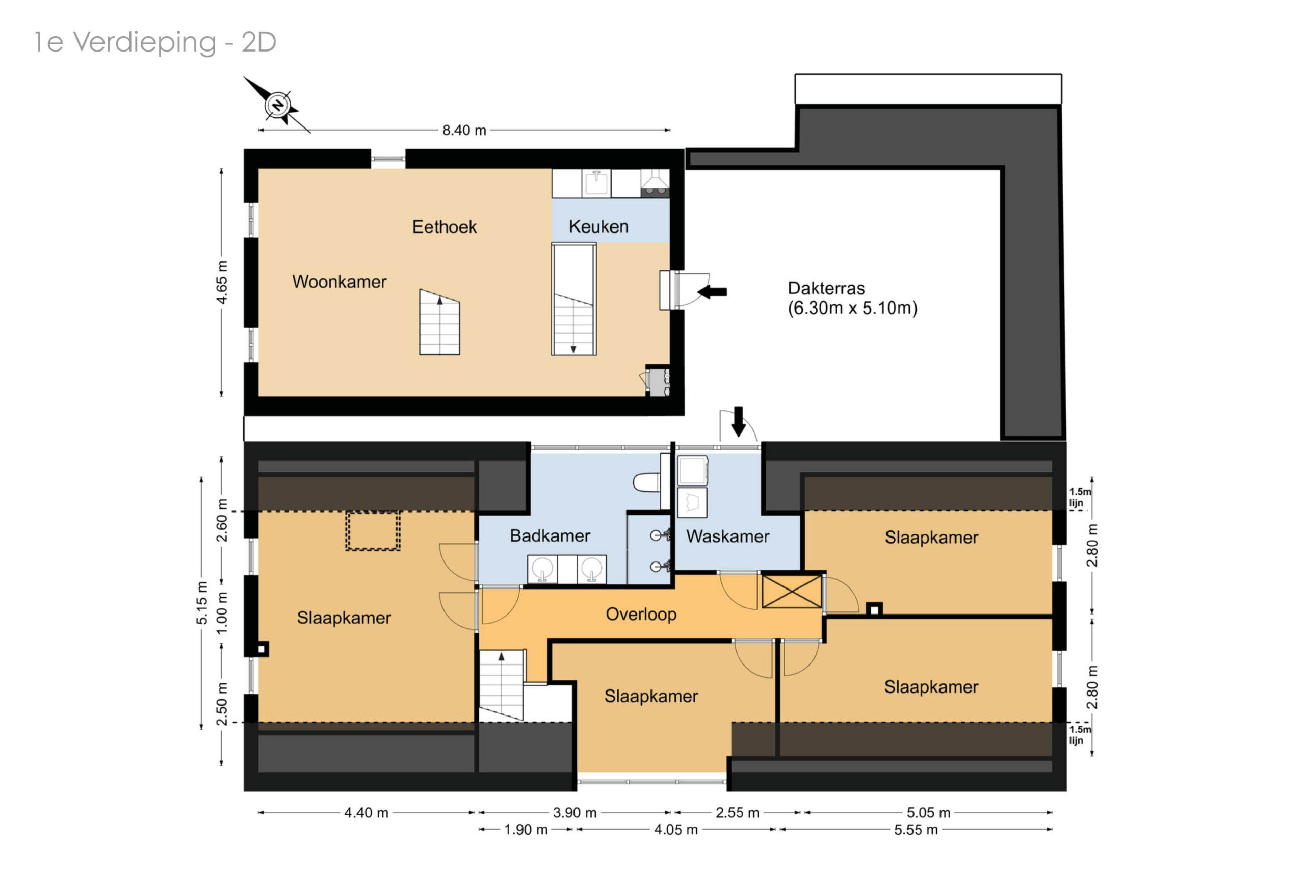
Eerste verdieping:
Meerdere slaapkamers, badkamer met douche en toegang tot een heerlijk dakterras. De recent vernieuwde dakkapellen (2024) zorgen hier voor extra ruimte en licht. In 2025 is een andere dakkapel gedeeltelijk in kunststof gezet.

Tweede verdieping:
Nog eens extra slaapkamers en bergruimte.

Buiten:
De diepe achtertuin biedt veel privacy en voldoende ruimte om te genieten van rust en groen. Daarnaast beschikt het perceel over een vrijstaande stenen garage en praktische opslagmogelijkheden.

Bijzonderheden:
- Vrijstaande karakterwoning met veel leefruimte
- Aangebouwd pakhuis, momenteel in gebruik als bed & breakfast
- Perfect voor wonen + werken of verhuur
- 6 slaapkamers
- Moderne keuken (2022)
- 28 zonnepanelen
- HR++ glas, dak-, muur- en vloerisolatie
- Dakkapellen vernieuwd in 2023 en 2024
- Energielabel D
- Glasvezel aanwezig
- Gelegen nabij Nationaal Park Lauwersmeer
- Het pakhuis is gebouwd in 1630 en is een Rijksmonument

Locatie:
Eanjum is een dorp met ruim 1150 inwoners gelegen in de gemeente Noardeast-Fryslân. Er zijn diverse voorzieningen aanwezig, zoals een basisschool, kinderopvang, huisartsenpraktijk, supermarkt, snackbar en een slager. Ook is er een rijk verenigingsleven met o.a. diverse sportverenigingen en een dorpshuis. Eanjum heeft een vlotte aansluiting via de Lauwersseewei naar de Centrale As en ligt op ongeveer 15 autominuten van Dokkum en ca. 30 autominuten van Leeuwarden en Drachten. Houd je van de natuur? Anjum is gelegen aan de rand van Nationaal Park Lauwersmeer. Op 10 minuten rijden bevindt zich Lauwersoog, het vertrekpunt van de veerboot naar Schiermonnikoog.

De verkoopinformatie is door ons met de nodige zorgvuldigheid samengesteld. Onzerzijds wordt echter geen enkele aansprakelijkheid aanvaard voor enige onvolledigheid, onjuistheid of anderszins, dan wel de gevolgen daarvan. Aan de informatie kunnen geen rechten worden ontleend.

De Meetinstructie is gebaseerd op de NEN2580. De Meetinstructie is bedoeld om een meer eenduidige manier van meten toe te passen voor het geven van een indicatie van de gebruiksoppervlakte. De Meetinstructie sluit verschillen in meetuitkomsten niet volledig uit, door bijvoorbeeld interpretatieverschillen, afrondingen of beperkingen bij het uitvoeren van de meting.

Overdracht
Status
Beschikbaar
Vraagprijs
€ 549.000,-
Aanvaarding
In overleg
Bouwvorm
Soort object
Woonhuis
Soort
Eengezinswoning
Soort dak
Zadeldak
Type woning
Vrijstaande woning
Bouwjaar
1900
Bouwvorm
Bestaande bouw
Oppervlaktes en inhoud
Woonoppervlakte
256 m2
Perceel oppervlakte
476 m2
Externe bergruimte
38 m2
Inhoud
1.218 m3
Aantal kamers
13
Aantal slaapkamers
6
Tuin
Tuinen
Achtertuin
Achterom
Nee
Schuur / Berging
Schuur
Aangebouwd hout
Garage
Vrijstaand steen, Inpandig
Parkeer faciliteiten
Openbaar parkeren, Op eigen terrein
Voorzieningen
Voorzieningen
Mechanische ventilatie, TV kabel, Zonnepanelen, Natuurlijke ventilatie
Onderhoud
Permanente bewoning
Ja
Onderhoud binnen
Goed tot uitstekend
Onderhoud buiten
Goed tot uitstekend
Huidig gebruik
Woonruimte
Huidige bestemming
Woonruimte
Energie
Energieklasse
D
Energie einddatum
30 april 2034
Warmwater
CV ketel
Verwarming
CV ketel